-
Характеристики
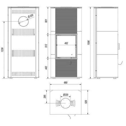
Производитель Kratki Площадь обогрева, м2 70 Топливо Дрова Материал топки Сталь Тип дверцы Со стеклом Длина дров, см 50 Страна Польша Гарантия мес 60 Диаметр дымохода 200 Габариты (ВхШхГ) 1556х680х529 мм Вес, кг 274 Варочная плита Нет Подключение дымохода сверху, сзади, универсальное Тип печи Печь-камин Материал печи Сталь, Керамика, Кафель, Изразец Объем помещения м³ 140 КПД 82 Зольник Нет Шибер Нет Колосник Нет Чистое стекло Да Длительное горение Да Духовка Нет Вторичный дожиг Да Подвод внешнего воздуха Нет Водяной контур Нет -
Описание
Особенности кафельной печи-камина Kratki NADIA KAFEL B RYFEL:
Кафельная печь камин Kratki NADIA KAFEL B RYFEL покрытая плиткой, представляет новый дизайн, который подойдет как стильным, так и современным интерьерам.
Камера сгорания выложена материалом Acumotte, который идеально контрастирует с печью, придавая ей современный вид. Полное сгорание дров в пыль благодаря двум отражателям, которые увеличивают траекторию дымовых газов. Этот процесс повышает эффективность сжигания и гарантирует лучшее использование энергии. Он также минимизирует выброс вредных веществ в атмосферу.
Первичный воздух подается в топку благодаря встроенному внешнему воздухозаборнику D=125 мм. Топка имеет крышку на задней стенке и отверстие в основании. Это решение предотвращает неправильное использование. Весь механизм работает спокойно и бесперебойно. Максимальное использование тепла благодаря ребрам на корпусе топки. Корпус и дверца устойчивы к высоким температурам благодаря использованию высококачественной стали.Топка оснащена термостойкой керамикой, выдерживающей температуру до 800°C. Блок соответствует требованиям стандартов Ecodesign и ограничениям стандарта BImSchV 2, который определяет максимальную эмиссию СО. Подовое горение (без колосника) способствует лучшему сгоранию топлива. Благодаря такому типу горения, тепло, выделяемое из древесины, максимизируется. Печь имеет регулируемые ножки и вращающийся на 360° патрубок дымохода.
Kratki NADIA KAFEL B RYFEL имеет ретро-стиль - рифленая полированная плитка. Корпус из плитки увеличивает время теплоотдачи, которое является дополнительным источником тепла после того, как огонь прекращает гореть.
Кафельная печь камин Kratki NADIA KAFEL B RYFEL купить в Могилеве с доставкой и рассрочкой платежа. -
Отзывы
-
Условия доставки и оплаты
Условия доставки Кафельная печь камин Kratki NADIA KAFEL B RYFEL в Могилев -
С этим товаром покупают
Гарантия и возврат
Амазонка бай реализует более 10 000 товаров надлежащего качества от проверенных поставщиков, зарекомендовавших себя как ТОП-производители. Гарантия производителя распространяется на гарантийный талон либо иной другой документ его заменяющий.
В случае возникновения гарантийного случая необходимо обратиться в сервисный центр или в наш отдел по рекламациям.
Какие гарантийные сроки?
В основном на продукцию распространяется гарантия от 12 месяцев до 25 лет в зависимости от срока, предусмотренного производителем. Данная информация указана в гарантийном талоне либо ином заменяющем его документе.
За более подробной информацией и разъяснениями можете обращаться к нам по телефону +375 (29) 8000 226. Всегда рады помочь!
Какая информация должна быть в гарантийном талоне?
Гарантия содержит информацию:
- дата реализации;
- модель товара;
- серию и номер.
В талоне проставляется штамп торгующей организации и печать ответственного лица.
Легкий возврат товара
Возврат некачественного товара.
Для возврата приобретенного недоброкачественного товара будет необходимо:
- связаться по телефону +375 (29) 8000 226 с отделом по рекламациям, объяснить причину поломки;
- предоставить документы, свидетельствующие о приобретении: кассовый чек, товарный чек, ТН, договор поставки и иные документы, доказывающие факт приобретения данного товара;
- оформление возврата некачественного товара - заявление;
- согласование возврата денежных средств либо замену товара.
Возврат товара надлежащего качества.
В случае возврата доброкачественного товара, потребитель осуществляет возврат в течение 14 календарных дней с момента приобретения. Товар должен быть в заводской упаковке, без повреждений, содержать все сопроводительные документы (гарантийный талон, паспорт изделия и т.д.) и иметь такой же вид, как при покупке.
Обращаем Ваше внимание, что возврат возможен не на все категории товаров. Перечень непродовольственных товаров надлежащего качества, не подлежащих обмену и возврату, утвержден Постановлением Совета Министров Республики Беларусь № 778 от 14.06.2002 года. (Изделия под заказ, отрезные товары)
Остались вопросы? Позвоните нам для уточнения +375 (29) 8000 226.
Простая замена товара
Я могу вернуть доброкачественный товар?
Да. Если Вы приняли решение вернуть качественный товар, такая возможность действует в течение 14 календарных дней со дня приоретения. Внимание! Товар должен иметь продажный вид как при покупке, без следов эксплуатации.
Однако вернуть можно не все покупки. Перечень непродовольственных товаров надлежащего качества, не подлежащих обмену и возврату, утвержден Постановлением Совета Министров Республики Беларусь № 778 от 14.06.2002 года. Обмен и возврат продукции осуществляется на территории продавца.
Как вернуть недоброкачественный товар?
Для возврата товара ненадлежащего качества требуется:
- обратиться к торговой организации;
- предъявить документы, подтверждающие покупку;
- обязательно предоставить заявление на возврат;
- обговорить возврат средств с менеджером.
Необходимо некачественный товар вернуть по месту расположения продавца.
Кредит и рассрочка товара
Порядок действий для рассрочки:
- 1. Клиент выбирает товар в интернет-магазине.
- 2. Определяется и согласовывает с менеджером сроки и условия рассрочки.
- 3. В зависимости от выбранных условий направляется заявка в банк.
- 4. Банк оперативно рассматривает заявку.
- 5. После подтверждения рассрочки доставляем товар покупателю.

* Скидки и акции при рассрочке не действуют

* Скидки и акции при рассрочке не действуют
название | в месяц | итого | |
---|---|---|---|
Карта Черепаха (8 мес.) | 1 648 | 13 185 | |
Альфа-рассрочка (5 мес.) | 2 637 | 13 185 | |
Халва (4 мес.) | 3 296 | 13 185 | |
Легкие покупки (4 мес.) | 3 296 | 13 185 | |
Карта покупок (2 мес.) | 6 593 | 13 185 |